
REMODELAÇÃO INTERIOR DA BASÍLICA DA ESTRELA
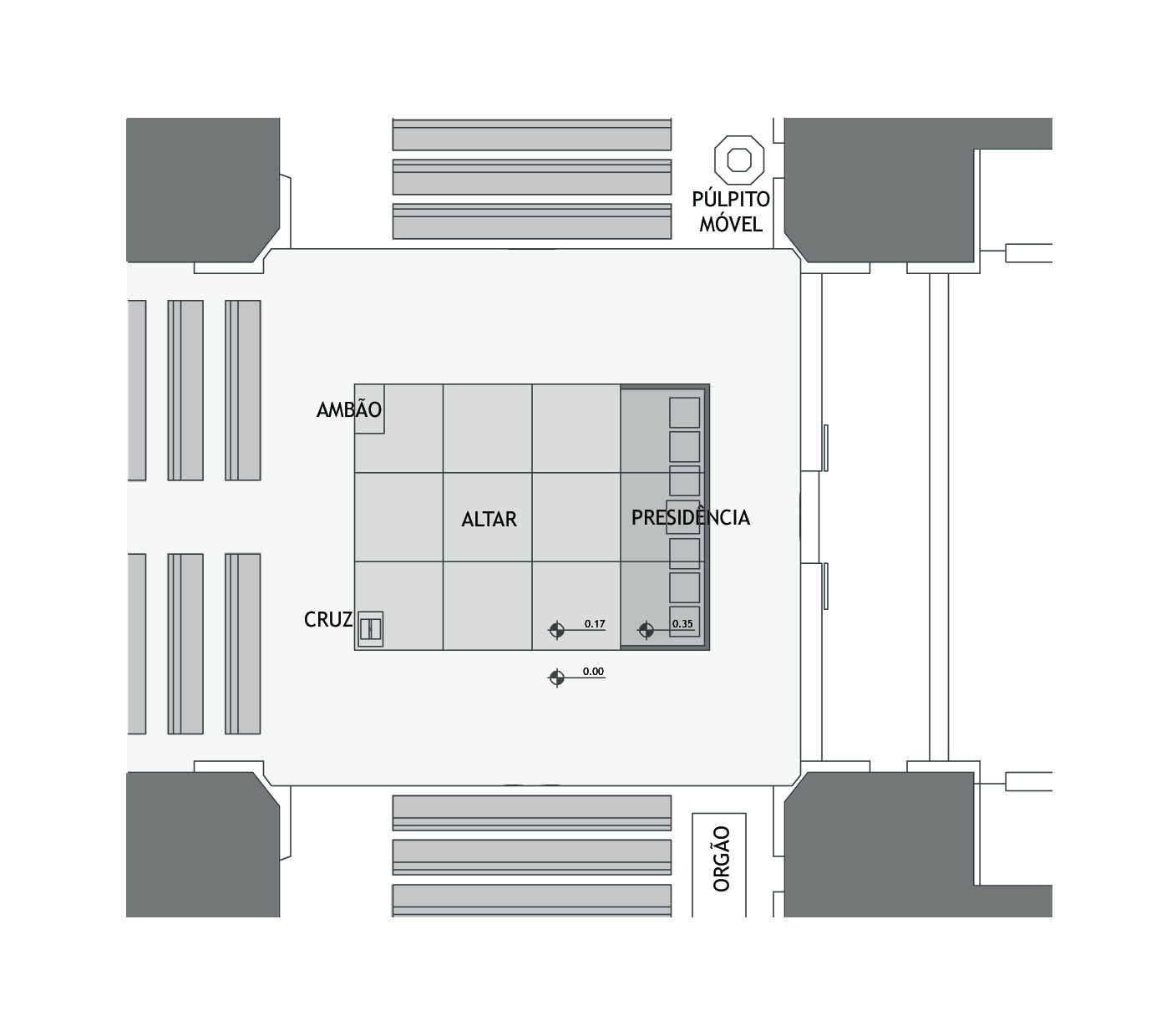
A intervenção teve como objectivo reordenar a disposição interior da Basílica da Estrela, considerada a última das expressões do Barroco na Arquitectura portuguesa e a definição como Monumento Nacional, de forma adequada ao ritual actual das celebrações.
Com um desenho contemporâneo e utilizando o aço e a madeira laminada no altar, no ambão, na base da cruz processional no supedâneo para o novo presbitério, estes elementos estabelecem a diferença entre o preexistente e a proposta sem criar interferências.
Lisboa - Largo da EstrelaFábrica da Igreja Paroquial da Freguesia Matriz Nossa Senhora da Estrela 2005
Lisboa – Largo da Estrela |
Fábrica da Igreja Paroquial da Freguesia Matriz Nossa Senhora da Estrela | 2005








